O lugar escolhido para abrigar o CoLAB foi um sobrado antigo, em uma área residencial longe do burburinho de Botafogo, na rua Fernandes Guimarães. Originalmente funcionava no local uma oficina de motos, com uma grande abertura frontal, porta metálica de rolo e piso de cimento. Decidimos tomar partido disso, já que no briefing do cliente a ideia era ter um espaço que fosse a extensão da rua, um ambiente transparente que viabiliza e incentiva a produção artesanal, remetendo à ideia de um laboratório de experimentações na “garagem de casa”.
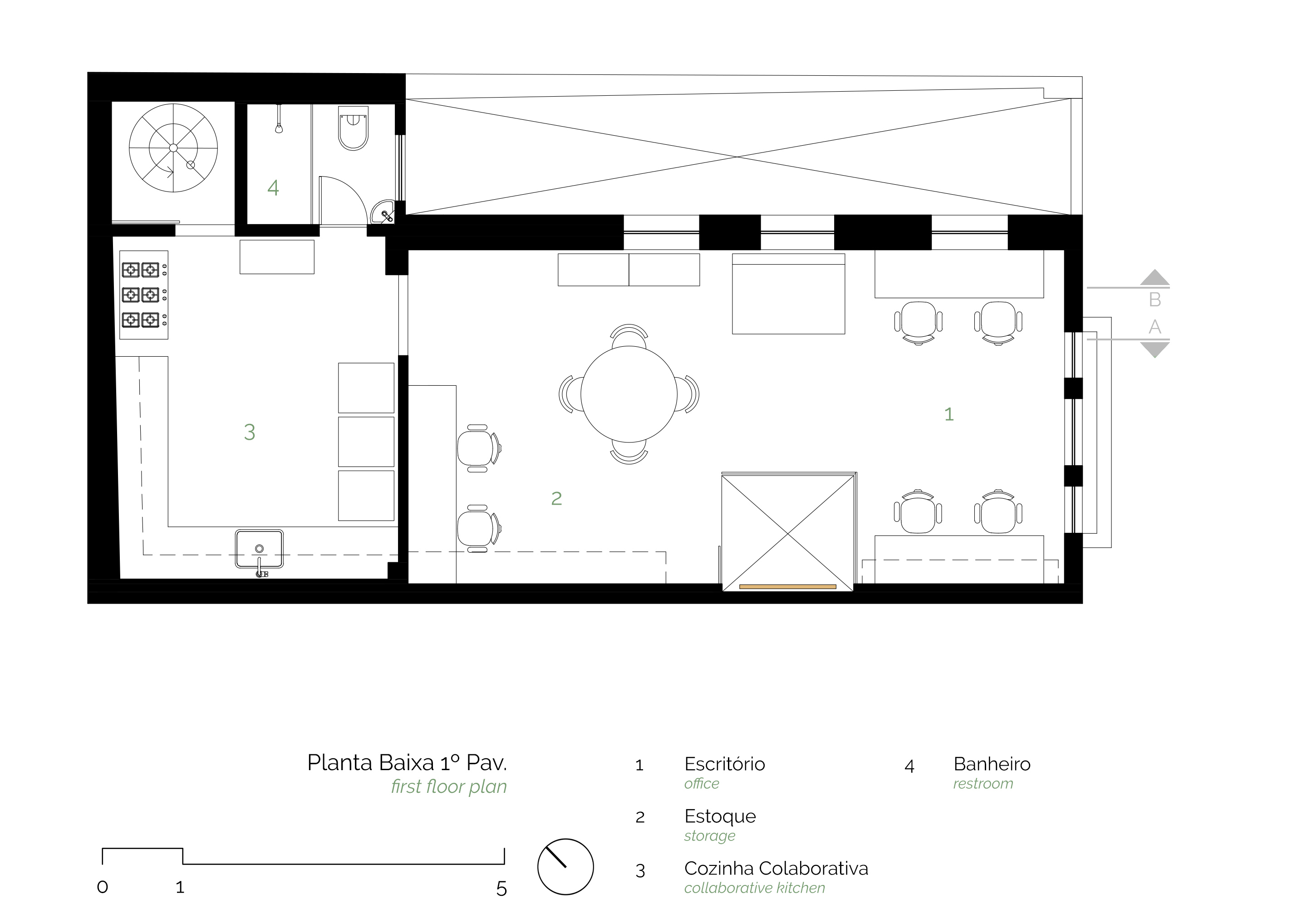
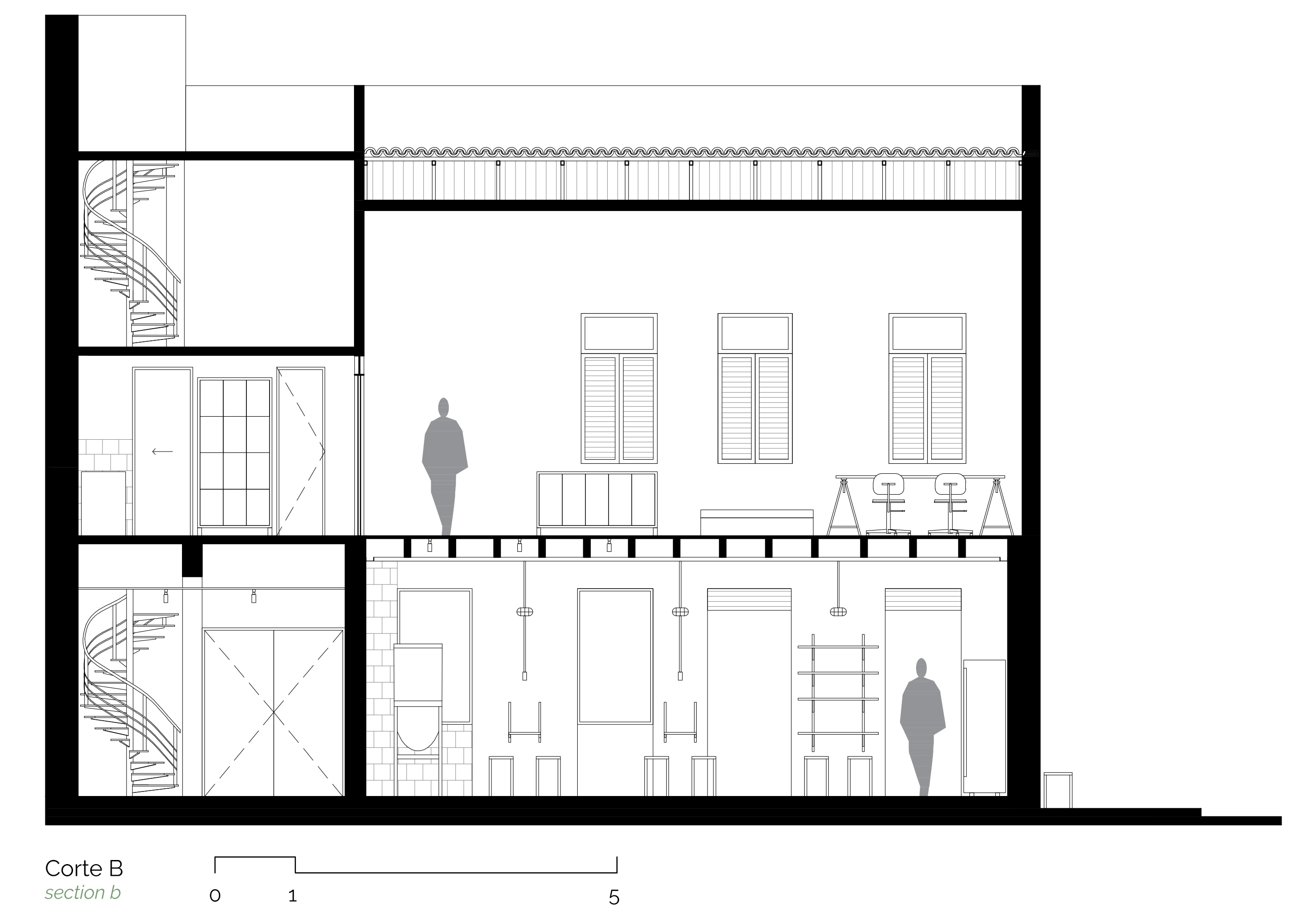
O sobrado possui três pavimentos, que somam 140m², e teve seu programa distribuído da seguinte forma: no térreo, o atendimento ao público, com salão e bar; no primeiro pavimento, as atividades mais privadas, como a cozinha colaborativa, o estoque/logística e os escritórios; e por fim, no segundo pavimento, a micro-cervejaria artesanal.
O espaço interno é profundo e estreito, decidimos então manter a entrada principal e demolir os vãos laterais, permitindo uma melhor integração com a área externa, que também dá acesso ao banheiro e à escada que conecta os outros pavimentos. A entrada lateral existente deu lugar a uma parede de blocos de concreto vazados, aumentando a comunicação visual externa/interna e possibilitando uma melhor disposição do mobiliário. Na fachada, a pintura azul royal ganhou nova roupagem, agora metade cinza, metade branca.
No pavimento térreo, o forro do teto foi retirado, deixando as vigas de madeira aparentes. Porém seu pequeno recorte original foi mantido, dando origem a um montacarga manual, que através de um sistema de roldana, corda e gancho, desloca os produtos para o primeiro pavimento de forma rápida e prática. Nesse local, a parede foi descascada, deixando os tijolos aparentes, e também foram instaladas uma série de lâmpadas tubulares que fazem alusão à uma escada que conecta os dois andares — e suas respectivas funções — produção e estoque.
O mobiliário foi desenhado para atender o layout do espaço e suas diversas ocupações. As mesas têm sua estrutura em ferro e tampo com cerâmicas brancas e verdes, que num pequeno mosaico, desenham a identidade visual do CoLAB. No centro do salão, três unidades se unem para formar uma grande mesa coletiva, agregando desconhecidos e incentivando a integração do público. Para complementar, balcões altos no estilo “bar” e mesas retráteis, que podem ter alturas variadas, flexibilizando sua ocupação. Estantes com cremalheiras no bar para abrigar garrafas, cafés e seus utensílios, e também no salão, como vitrine dos produtos artesanais locais.
Traduzimos a abordagem escandinava do cardápio (fika menu) em uma ocupação casual, através de materiais minimalistas como o azulejo, o pinus e o cimento. Cactos e suculentas também fazem parte do conceito do espaço, que além de demandar pouca manutenção, resgatam o clima nórdico. A linguagem industrial de produção também está presente, seja por meio da exposição dos tonéis de cerveja até a seleção das luminárias e suas tubulações e instalações aparentes.




